鬥式提升機是一種連續輸送機械,利用均勻固接於無端牽引構件上的一係列料鬥,在豎直或接近豎直方向內向上運送散料。它主要由運行部分(料鬥與牽引膠帶)、帶有傳動滾筒的上部區段、帶有拉緊滾筒的下部區段、中間機殼、驅動裝置、逆止製動裝置等組成。鬥式提升機主要適用於向上輸送鬆散密度ρ<1.5t/m³粉狀、粒狀和小塊狀的無磨琢性和半磨琢性散狀物料,如煤、砂、焦末、水泥、碎礦石等。
垂直輸送,結構緊湊、占地麵積小、簡單,提升高度和輸送量都較大;
密封性好,能在全封閉的罩殼內工作;
過載的敏感性大,鬥和牽引件易損,不適應輸送大塊物料,必須均勻加料,否則易堵塞。
鬥式提升機可分為膠帶式和鏈條式,結構緊湊、占地麵積小、密封性能好。膠帶式鬥提機輸送輕巧、靈便、維修方便、噪音低,適用於輸送密度小於1.5的粉狀、顆粒狀的物料輸送,物料溫度一般在100攝氏度以下。鏈條式鬥提機用於輸送量大且物料密度大於1.5的粉狀、顆粒狀的物料輸送,物料溫度一般在100攝氏度以上。

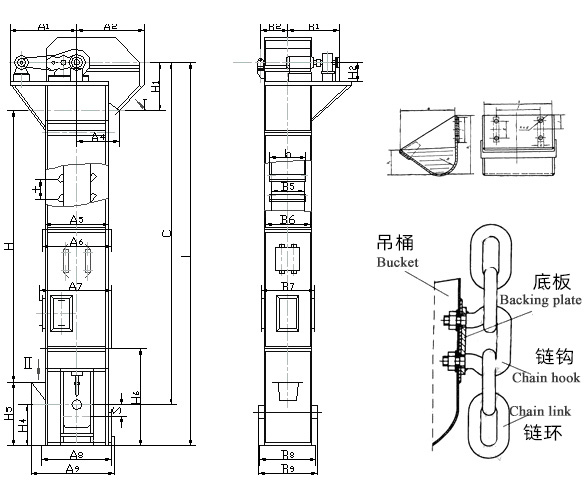
1.料鬥:用於裝載物料並進行提升。
2.牽引構件:如膠帶或鏈條,帶動料鬥運動。
3.驅動裝置:提供動力,通常包括電機、減速器等。
4.上下滾筒(或鏈輪):改變牽引構件的運動方向。
5.機殼:形成封閉的輸送通道,防止物料外溢和灰塵飛揚。
6.張緊裝置:用於調整牽引構件的張緊度,保證正常運行。


膠帶式鬥提機型號:
| 型號 | TD100 | TD130 | TD160 | TD250 | TD315 | TD400 | TD500 | TD600 |
| 轉速(米/秒) | 0.4-1.4 | |||||||
| 輸送量(立方/小時) | ≤3 | ≤4 | ≤20 | ≤38 | ≤42 | ≤68 | ≤96 | ≤148 |
| 提升高度(米) | ≤12 | |||||||
鏈條式鬥提機型號:
| 型號 | TH160 | TH200 | TH250 | TH315 | TH400 | TH500 | TH630 |
| 轉速(米/秒) | ≤1.0 | ||||||
| 輸送量(立方/小時) | ≤15 | ≤25 | ≤35 | ≤59 | ≤94 | ≤118 | ≤185 |
| 提升高度(米) | 10-40 | ||||||
鬥式提升機的應用非常廣泛,其中包括以下幾個行業:
1.建材行業:在水泥、石灰石、石膏等材料的輸送中,鬥式提升機是最為常見和有效的一種輸送設備。它們可以將原料從儲存罐或裝載設備輸送到各個工作站點,同時也可以將成品輸送到倉庫或包裝區。
2.化工行業:主要用於輸送顆粒狀物料,如氧化鋁、硫酸鉀、磷酸二氫鉀、碳酸鈣等。同時也可用於輸送液態物料。
3.冶金行業:通常用於煉鐵、煉鋼、鑄造等工藝過程中的物料輸送,如鐵礦石、焦炭、石灰等。
4.食品行業:主要用於輸送穀物、花生、大豆等散裝物料,並廣泛應用於麵粉加工、飼料加工、乳製品加工等領域。
5.礦山行業:通常用於將礦石、煤炭等散裝物料從井口輸送到地麵或將其運往其他工藝流程設備。

國家專利產品
CE認證
知識產權認證
質量體係認證
省著名商標
環保認證
曾獲省/市高新技術企業
省/市科技進步獎
省/市誠信企業等榮譽

三十年專注於精細化粉體好色先生视频播放器的製造,使得好色先生污视频積累了大量的生產和服務經驗,也為好色先生污视频更多客戶,解決了粉體加工的難題。

我公司將創新視為公司發展的生命之源,迄今已獲得40多項國內及國際專利,很多類型的產品一機多項專利。

公司引進多套先進設備,使我公司造出來的好色先生视频播放器重量減輕且承載力更強,運行更加穩定、節能明顯的同時又提高了生產效率。

我司專業承接精細粉體加工生產線的設計與生產項目,從破碎、篩分、輸送、給料、混合到包裝,為您提供一站式服務。














免費定製您的專屬解決方案